三相电表接入总闸怎么接线 三相四线电表接线图

一、三相电表接入总闸怎么接线

1、三相电表直接接入式:

直接接入式也称为直通式接线,是在负载功能电表允许的范围内就可以直接接入,也就是电表的电流规格能够满足用户的需求,就可以使用该方法。(1)1、2称之为U,是三相四线电表的火线,接到A相进线端,3接到A相出线端;

(2)4、5称之为V,是三相四线电表的火线,接到B相进线端,6接到B相出线端;

(3)7、8称之为W,是三相四线电表的火线,接到C相进线端,9接到C相出线端;

(4)A、B、C三相出线端接负载;

(5)10接零线,接后面的接线。

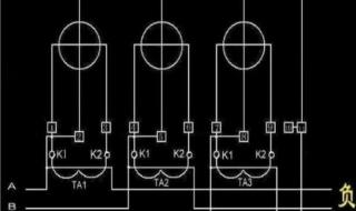
2、三相电表经互感器接入式:

三相电表测量大电流的单相电路的用电量时,因为线路流过的电流很大,例如300-500A,不可能采用直接接入法,应使用电流互感器进行电流变换,将大的电流换成小的电流,即电能表能承受的电流,然后再进行计量。(1)1、4、7要接到电流互感器二次侧的S1端,就是电流的进线端;

(2)3、6、9要接到电流互感器二次侧的S2端,就是电流的出线端;

(3)2、5、8分别接到A、B、C三相电源;

(4)10是接零线,一般为了安全起见,一定要将电流互感器S2端连接后接地。

注意事项: 各电流互感器的电流测量取样必须与其电压取样保持同相,即1、2、3是一组;4、5、6 是一组;7、8、9 是一组。

3、三相电表经电流、电压互感器接入式:

三相电表测量大电流和大电压时,因为电压和电流很大,不能直接接入,应使用电压和电流互感器进行电压、电流变换,把大电压、大电流换成小电压、小电流,即电能表能承受的电压、电流,再进行计量。

(1)1、4、7要接到电流互感器二次侧的S1端,就是电流的进线端;

(2)3、6、9要接到电流互感器二次侧的S2端,就是电流的出线端;

(3)2、5、8分别接到电压互感器;

(4)10要接零线,并且与电压互感器一起接地;

二、华立三相四线电表正确接法

华立三相四线电表的正确接法如下:

1. 首先,需要确认电表的额定电压和额定电流,以及所要接入的电路的电压和电流。

2. 根据电表额定电流和电路电流的大小,选择合适的电线截面积。一般来说,三相四线电表的电线截面积应该大于等于电表额定电流。

3. 将电表的U、V、W三个相线分别接入三相电路的对应相线上,接线顺序可以随意。

4. 将电表的N线接入电路的零线上,接线顺序需要与三个相线的接线顺序保持一致。

5. 确保所有接线牢固可靠,无松动现象。

6. 对电表进行功能测试,确保各项功能正常。

需要注意的是,华立三相四线电表的接线需要符合国家标准和安装要求,否则可能会影响电表的测量精度和安全性。为了保证接线质量,最好由专业的电工进行接线。

三、三相四线电表零线怎么接

1、三相四线电表的零线接法如下:

2、首先,将电表的零线接到电源系统的中性线上,通常中性线是蓝色的。

3、然后,将电表的三个相线分别接到电源系统的三个相线上,通常相线是红、黄、蓝三种颜色。

4、最后,将电表的接地线接到接地系统上,通常接地线是绿色或者黄绿相间的。
需要注意的是,在接线之前,一定要确保电源系统已经切断电源,并且在接线过程中要按照正确的接线方法进行操作,以免发生安全事故。如果您不熟悉电气知识,建议您请专业人士进行操作。

四、三相四线电表正确与错误接法

三相四线电表连接固定,正确接法应该是三相四线系统中AB、BC、CA三个相线依次连接电表的A、B、C三个相位线,同时连接电表的下行线PE线和零线N线。
如果错误接法,可能会导致电表不工作或者测量结果偏差较大。
为了避免错误接法,应该在接线前仔细阅读电表说明书,或者请专业电工安装。

五、三相四线电子式电能表如何安装接线喃

三相四线电表市面上常见的2种接法,一种是电流比较小的情况下直接接入,一种是电流过大时需要加互感器。

1、直接接入:147三个点和258三个点对应连在一起,上面有连接片。最后的10接零线。

三相四线电表接线图

2、带有电流互感器的接线:电表的147三个点接三个电流互感器的S1点,369三个点接电流互感器的S2点,并且三个S2连一起接地。258接ABC三相,最后一个点接零线。注意这个时候接点上是没有连接片的。

相关新闻

联系我们

联系我们

400-800-8888

在线咨询: 点击这里给我发消息

邮件:admin@ahmka.cn

工作时间:周一至周五,9:30-18:30,节假日休息

关注微信
关注微信
分享本页
返回顶部